• ВАЖНО! Задавая технические вопросы, указывайте VIN в сообщении

Центральный замок W210

tahir

Пользователь
Сообщения
3
Реакции
0
Подскажите...Не работает ц з и стеклоподьемники двигатель заводится.Возил блок ц з компрессор на проверку -все нормально\у движка щетки поменяли теперь работает\ на машину установили копрессор не качает-предохранители в порядке.Где искать? E 280
 
По моему мнению два варианта: Сгорел, либо отошел, либо не туда вставлен предохранитель на замок(под капотом слева по ходу движения, номер не помню)И второй отвязался ключ.
Про первый вариант - чуш!
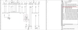
Питание на замок зажигания (N73) НЕ ИДЁТ через предохранитель!!! (клемма 30 )
210EZS.jpg
А вот второй вариант реальный!
 
Предлагаю вам такой порядок действий:1 снять клемму аккамулятора 2 подождать минут 30, поставить клемму на место.3 вставить ключ в замок 4 если нет реакции, проверить предохранитель про который писал ранее(номер час попробую найти) 5 если опять нет реакции, то потребуется сканер(любой чтоб мог подключиться к мерсовскому разьему считать ошибку записать ее номер,после удалить если толку будет ноль, то бюджетные способы для вас закончились, после раскажу о способах подороже
 
Про первый вариант - чуш!
Питание на замок зажигания (N73) НЕ ИДЁТ через предохранитель!!! (клемма 30 )
Посмотреть вложение 138059
А вот второй вариант реальный!
С чего это чушь попробуй дерни его у себя и посмотри на результат.Сам через все это проходил
 
1 снять клемму аккамулятора 2 подождать минут 30
А почему не час?
Вообще то ресет блоков управления на Мерседесе происходит в течении 15-20 секунд!
И хочется посмотреть на предохранитель!
 
С чего это чушь попробуй дерни его у себя и посмотри на результат.Сам через все это проходил
Предохранитель стоит ПОСЛЕ замка! Сечение провода 1 кв
А вот по питанию сечение провода 4 кв
Я вам кусок схемы не просто так выложил!
 
после раскажу о способах подороже

а можно сразу про дороже и где купить желательно, т.к. в нашей дыре ничего нет
 
Предохранитель стоит ПОСЛЕ замка! Сечение провода 1 кв
А вот по питанию сечение провода 4 кв
Я вам кусок схемы не просто так выложил!
Но факт в том что если его вытащить хрен замок ключ примет!!!!
 
Предлагаю вам такой порядок действий:1 снять клемму аккамулятора 2 подождать минут 30, поставить клемму на место.3 вставить ключ в замок 4 если нет реакции, проверить предохранитель про который писал ранее(номер час попробую найти) 5 если опять нет реакции, то потребуется сканер(любой чтоб мог подключиться к мерсовскому разьему считать ошибку записать ее номер,после удалить если толку будет ноль, то бюджетные способы для вас закончились, после раскажу о способах подороже
Клемму снимали и ждали даже не 30 а 3 часа, только ставишь клемму и она начинает орать как потерпевшая
 
Клемму снимали и ждали даже не 30 а 3 часа, только ставишь клемму и она начинает орать как потерпевшая
Схему предохранителей найдите и попробуете мой вариант( на схеме описания предохранителей может быть немного не верно)
 
Но факт в том что если его вытащить хрен замок ключ примет!!!!
Конечно не примет!
Вот он ваш предохранитель!
А теперь посмотрите что он питает!
210EZS_1.jpg
БЛОКИРАТОР РУЛЯ!!! (ELV)
Естественно если на блокираторе не будет питания то и обмена данными не будет!
 
после раскажу о способах подороже

а можно сразу про дороже и где купить желательно, т.к. в нашей дыре ничего нет
покупать ничего не нужно, нужен для начала диллерский прибор Star Diagnosis и человек который умеет с ним обращаться
 
Нет конечно, один, года 2 назад мы уже меняли замок и ключ, тогда он поворачивал в положение 2 , но стартер не крутил
Сталкивался с такой подлянкой от ремонтников замков!
При прописывании (синхронизации) ключа в замке указывалось определённое включение зажигания (допустим 1500) и после этого ключик переставал приниматься! Это для того чтоб опять к ним возвращались! Без работы не хотят остаться!
 

Похожие темы

Команда форума онлайн

Пользователи онлайн

Статистика форума

Темы
61.172
Сообщения
663.906
Пользователи
218.489
Новый пользователь
Kenjikido

Мы ВКонтакте

Назад
Сверху Снизу